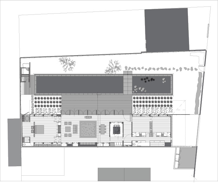
Dans la banlieue résidentielle de Bordeaux, sur un terrain rectangulaire de 1 000 m², la maison, de plain-pied, est adossée au mur mitoyen nord de la parcelle sur 40 m de long pour s’ouvrir au sud sur un jardin agrémenté d’un plan d’eau et d’une piscine. Trois bandes alignées permettent de traiter l’espace dans une intimité qui associe étroitement l’intérieur et l’extérieur.

Escamotable, la façade sud de la maison est composée de grandes portes vitrées pivotantes à encadrements de bois exotique, toutes identiques, abritées par un large auvent métallique partiellement vitré.

À l’intérieur, les pièces en enfilade s’ouvrent toutes sur le jardin, reliées à l’arrière par un meuble – desserte, vaisselier, canapé, bibliothèque – longeant le mur mitoyen. Dans le séjour, la cuisine est une boîte autonome qui peut s’ouvrir ou se fermer sur trois côtés, selon les usages.

  • Maître d’ouvrage privé 
    Commande directe 
  • Mission 
    base loi mop 
  • Coût 
    381 122 € HT 
  • Surface 
    270 m² shon 
  • Architecte mandataire 
    Brochet Lajus Pueyo