Ouvrir un musée c’est compléter une ville
Le nouveau projet Bonnat Helleu rouvre ses portes sur la rue des musées, non loin du musée Basque.
Une nouvelle percée est aménagée dans la façade composite rue Jacques Lafitte, entre musée et école. Conçue comme une rue couverte, une galerie voutée amène le public au centre du musée où se trouve l’accueil, au contact direct du patio historique.
Les ouvertures sur rue du rez de chaussée sont rouvertes, et transformées en portes vitrées. Les fonctions publiques du Musée, café, boutiques sont installées en façade, entre rue et patio. Toute la séquence de la rue des Musées est ainsi ranimée; outre l’entrée principale du musée, les ouvertures du café public s’y adressent, offrant au passant et au visiteur une transparence, et une vue entre rue et jardin intérieur.
Un nouvel espace public est ainsi relié à l’extérieur, ajouté à l’espace public Bayonnais, c’est le cloître du musée Bonnat rouvert au public. Le musée est ainsi ajouté, comme une pièce supplémentaire de forte identité, à l’espace public de la ville, fait d’enchainement et de diversité. Tout ici est fait pour assurer le lien évident entre l’extérieur, la ville, et l’intérieur, le cloitre : ouvertures mesurées, continuité des sols et des matières, la pierre, composition des bâtiments dont la disposition en gradins amène la lumière dans le cloître au centre du nouveau musée, comme une invitation à entrer pour tous les publics, jusqu’au cœur de l’ilot.
Nouveaux usages – nouvelles figures
Où, pour que tout change, il faut que rien ne change.
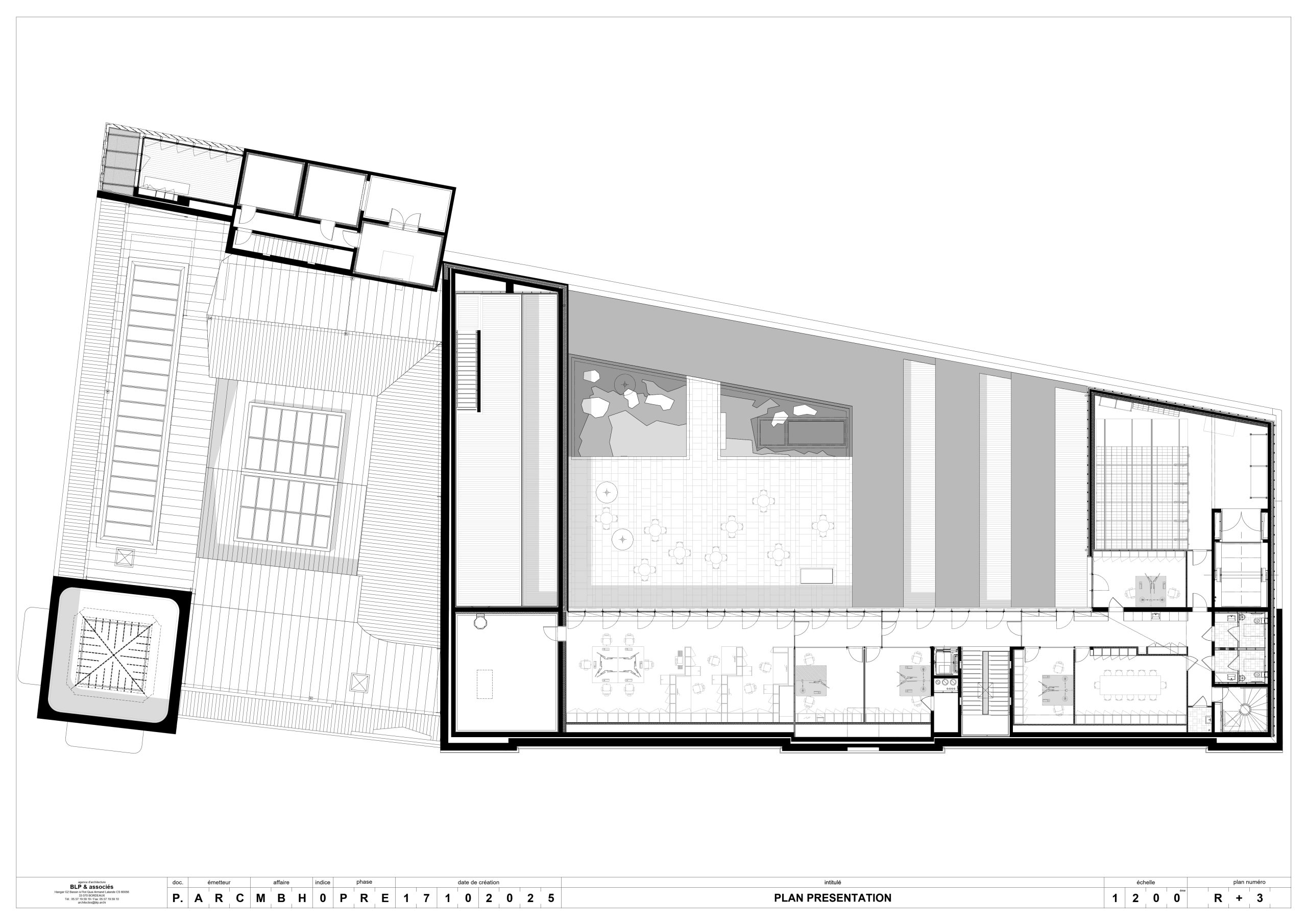
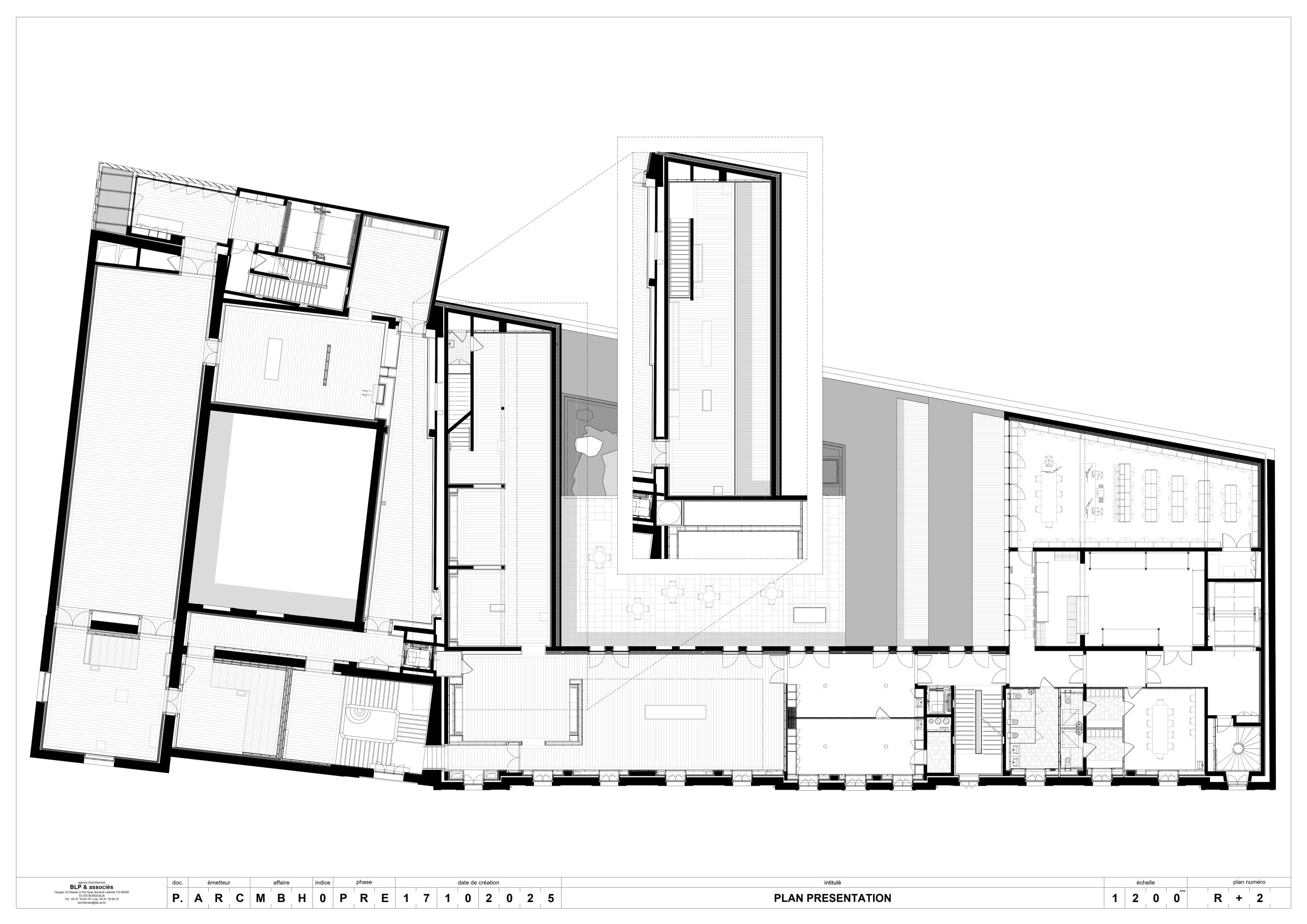
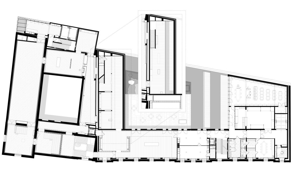
Le musée d’origine est complété, et renforcé dans sa géométrie conçue autour du patio central: la nouvelle salle majeure qui prend place en balcon sur cour, à la place de l‘amphithéâtre des années 50, équilibre le parcours autour du patio. Rien ne change dans les usages… Les visiteurs retrouvent le musée Bonnat d’origine, comme si rien n’avait changé, et pourtant : les mosaïques réapparaissent, le parcours dans les étages autour du patio des donateurs, s’est épaissi sur cour, les combles invisibles ont fait place à la nouvelle salle majeure du musée. Inédite, elle parait pourtant tellement accrochée à la logique du musée d’origine, qu’il semble qu’elle a toujours existé ici.
La cour de l’école transfigurée
La cour de l’école était limitée au nord par le mur aveugle du musée. Rien ne change… le mur cimaise suspendu au-dessus de l’accueil abrite le nouvel usage intérieur du musée.
Mur de pierres et de reflets du soleil basque, il vibre d’une douce texture, et fait place au rez de chaussée à une façade de verre toute hauteur qui offre la vue de l’intérieur du patio jusqu’à l’extrémité sud de la parcelle. Une vue longitudinale extérieure, des collections permanentes à la salle d’expositions temporaires et réciproquement.
Un vis-à-vis, qui fait basculer l’ancienne cour d’école dans une époque nouvelle, celle du Musée Bonnat transfiguré.
Le cloître et la colline
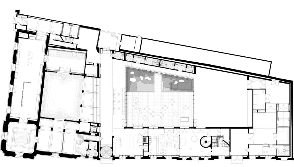
Au rez-de-chaussée, l’espace du musée est conçu comme un cloître.
Les arcades de l’ancienne école sont rouvertes entre ville et cour intérieure offrant une ouverture en façade sur tout le linéaire. Sur les trois autres faces, la circulation des publics se fait dans une galerie qui complète ces arcades ; on y trouve d’un côté, l’accueil aux collections permanentes, et en vis-à-vis la salle d’exposition temporaire. Au fond, le long du mur du lycée, la galerie d’actualités vitrée des expositions temporaires relie les deux côtés.
Deux faces du cloître, sont déjà existantes : la façade du musée et celle de l’école. Ces deux façades sont transformées en douceur. Le musée y trouve une cimaise magistrale, nouvelle page de pierre en suspension au-dessus de l’accueil vitré. La façade de l’école est restituée et pacifiée. Le traitement de la pierre par une teinte monochrome, associe parties pleines et menuiseries en un « tout ». Les modénatures de l’usage passé persistent, atténuées par le traitement nouveau. Au Sud, pour les réserves un nouveau bâtiment s’installe en vis-à-vis la cimaise nouvelle façade du musée ; d’une génétique nouvelle, il introduit au cœur de Bayonne un élément de paysage. C’est un emmarchement, revêtu de buis qui offre au cloître l’ouverture vers le Sud, et l’asymétrie qui permet à la lumière de rentrer généreusement dans cet espace bien dimensionné.
Nouvelle figure pour le musée Bonnat Helleu, faite de la minéralité du cœur de la ville et du paysage vallonné de son environnement direct, image nouvelle pour ce musée faite de valeurs permanentes du lieu dans lequel il rouvre ses portes.


Façade Ouest – Rue Jacques Laffitte

Façade Nord – Rue Frédéric Bastiat

Façade Est

Façade phare

Coupe AA’ transversale – Musée historique – Exposition permanente

Coupe BB’ longitudinale – vers façade Est patio

Coupe CC’ longitudinale – vers façade Ouest patio

Plan de rez-de-chaussée